Dettagli
Laureana C.to, Località Matonti, a meno di 15 minuti dal mare di Santa Maria di Castellabate e di Agropoli.
In contesto tranquillo e panoramico, proponiamo una soluzione indipendente su 3 lati, con ampi spazi esterni, ottima luminosità e vista aperta sulla valle cilentana.
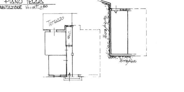
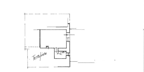
La proprietà si sviluppa su 3 livelli, così organizzati:
Piano strada (abitativo), 2 unità abitative di circa 40 mq ciascuna, composte da 2 camere e bagno, entrambe con terrazzino panoramico. Corte esterna adibita a parcheggio.
Al primo piano sottostrada, abitativo, con accesso tramite scala esterna troviamo ulteriori 2 unità speculari di circa 35 mq ciascuna, entrambe con zona cucina con camino e affaccio su due splendidi terrazzi, perfetti per pranzi e cene all’aperto.
Al secondo piano sottostrada, abbiamo 2 depositi/cantine per un totale di circa 70 mq.
La proprietà si completa terreno di circa 700 mq adiacente e pertinenziale, ente urbano.
La soluzione è ideale per più nuclei familiari, bifamiliare/trifamiliare, oppure come investimento ricettivo (B&B, casa vacanze, affittacamere).
L’immobile necessita di ristrutturazione, ma la struttura, disposizione e posizione permettono una valorizzazione notevole con un progetto mirato.
Caratteristiche
Piano Terra
Indirizzo e mappa
Contrada S. Giovanni, 2, 84050 Laureana Cilento SA, Italia
Agente
Studio Casa Immobiliare Mandia&Passaro
Corso Senatore Matarazzo, 105 - Santa Maria di Castellabate (SA)
09741735036
Contatto
Message has been sent successfully.
















