Dettagli
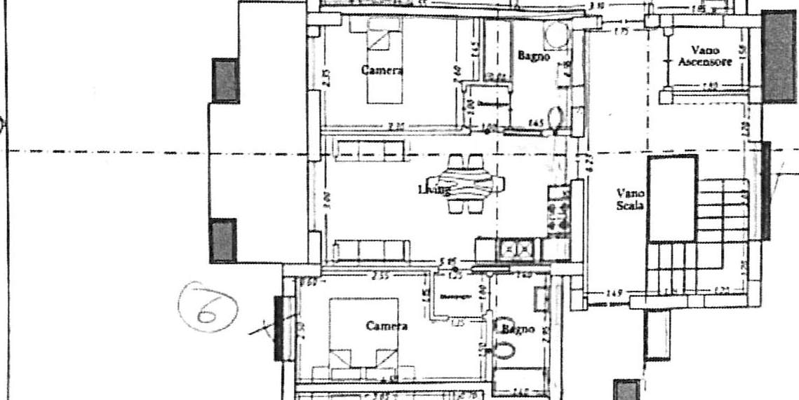
Appartamento in Vendita a Santa Maria di Castellabate, scopri il tuo nuovo rifugio nel cuore di Santa Maria di Castellabate! Questo appartamento al primo piano, parte di una recentissima costruzione, offre un ambiente moderno e accogliente. Con una superficie commerciale di 68 m², l’immobile è composto da una cucina abitabile, una camera con bagno privato, una cameretta e un ulteriore bagno di servizio. Ogni angolo è progettato per garantire comfort e funzionalità. Il terrazzo abitabile regala una vista aperta, perfetta per godere di momenti di relax all’aria aperta. Dotato di climatizzazione, portone blindato e impianto di allarme, questo appartamento è un vero gioiello della sicurezza e della tecnologia moderna, grazie anche al sistema di domotica integrato. Inoltre, soddisfa i requisiti di casa green, assicurando un basso impatto ambientale. La comodità non finisce qui: l’ascensore interno collega tutti i piani dello stabile ed è possibile annettere anche un box auto di pertinenza, rendendo questo immobile un investimento sicuro e garantito. Non perdere l’occasione di vivere in un luogo dove ogni dettaglio è pensato per il tuo benessere.
Contattaci per maggiori informazioni
Caratteristiche
Piano Terra
Indirizzo e mappa
piazza izzo santa maria
Agente
Studio Casa Immobiliare Mandia&Passaro
Corso Senatore Matarazzo, 105 - Santa Maria di Castellabate (SA)













